These images are used in good faith. The copyright owner may contact this website at mail@hamptonwickhistory.org.uk
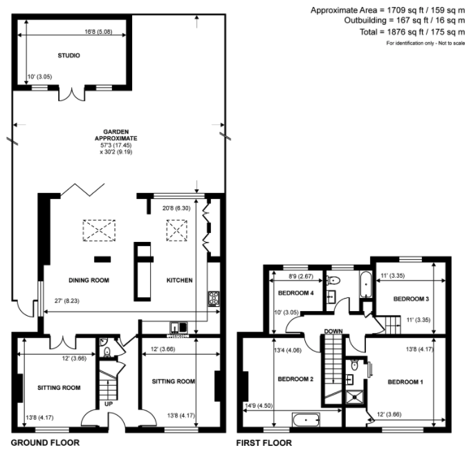
24 Church Grove on sale March 2021










Estate Agent Publicity Material
These images are used in good faith. The copyright owner may contact this website at mail@hamptonwickhistory.org.uk
24 Church Grove on sale March 2021